약품 용해설비
개요
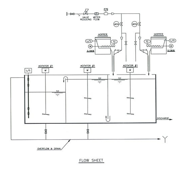
분말 및 액상 폴리머를 정량,자동으로 용해하는 장치로서 정농도의 폴리머 용해액을 연속적으로 사용할 수 있도록 제작된 설비특장점
- 비례공급 방식을 체택하여 정농도의 수용액을 연속적으로 공급가능,조작이 간단하고운전,유지관리가 편리
- 설치면적 및 설치비의 최소화,컴팩트한 구성 및 원격제어 시스템으로 관리비 절감
- 포리머 용해 농도(0.05~2%)조절 가능
- 현장 상황에 다라 용해탱크 및 호퍼 크기,규격 배관 및 현장제어반 위치 변경이 가능

적용분야
하수,정수,폐수 처리시설축산 및 분뇨 처리시설
음식물 처리시설
산업단지,농공단지 및 공자 등의 폐수 처리시설
연계설비
가압 부상 설비침전 설비
농축 및 탈수 설비

